SK-UQK-71液位顯示控製儀廣泛應用於煉油、化工、造紙、冶金、電力、食品、生活用水及汙水處理等企業。
結構原理
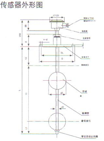
SK-UQK-71-2液位顯示控製儀的傳感器中裝有三隻幹簧管分別為下限、上限、越限報警。SK-UQK-71-4有五隻幹簧管,比SK-UQK-71-2多兩點液位顯示。裝有磁鋼的浮球隨液位上、下時使不同位置的幹簧管動作,通過顯示表內相應繼電器的吸合將液位的正確位置指示出來。下限、上限顯示表有繼電器觸點輸出(相當於1 x 2開關)。上限越限時能發出聲、光報警信號而無繼電器觸點輸出。
SK-UQK-71-10、SK-UQK-71-50傳感器中裝有若幹隻幹簧管。當裝有磁鋼的浮球隨液位上、下時,使不同位置的幹簧管動作,從而使傳感器輸出的阻值發生變化,顯示表則將這變化的阻值轉換成麵板—卜bu的de發fa光guang二er極ji管guan的de亮liang熄xi來lai顯xian示shi被bei測ce的de液ye位wei。顯xian示shi表biao上shang裝zhuang有you控kong製zhi點dian的de設she定ding鈕niu,叮ding任ren意yi將jiang液ye位wei的de控kong製zhi範fan圍wei預yu先xian進jin行xing設she定ding。當dang液ye位wei到dao達da設she定ding高gao度du時shi,顯xian示shi表biao內nei繼ji電dian器qi吸xi合he由you繼ji電dian器qi的de觸chu點dian通tong或huo斷duan去qu控kong製zhi液ye麵mian或huo報bao警jing。
液位顯示控製儀傳感器外形圖

液位顯示控製儀安裝形式

本文來源於網絡,如有侵權聯係刪除轉載請注明出處!!