SKUHZ型磁翻板液位計由本體、翻板箱(由紅、白雙色磁性小翻板組成)、浮子、法蘭蓋等組成,用於各類液體容器的液位測量。能用於高溫、防爆、防腐、食品飲料等場合對液位的測量及就地顯示或遠傳顯示與控製。SKUHZ係列產品可以做到密封、防泄漏和在高溫、高壓、高粘度、強腐蝕性條件下安全可靠地測量液位,全過程測量無盲區、顯示醒目,讀數直觀,並且測量範圍大,配上液位報警、控製開關,可實現液位或界位的上下限報警和控製,配上SK係列液位變送器可將液位。界位信號轉換成二線製4~20mADC的標準信號,實現遠距離檢測、指示、記錄與控製。SKUHZ係列磁翻板液位計廣泛用於電力、石油、化工、冶金、環保、船舶、建築、食品等行業生產過程中的液位測量與控製。
工作原理:
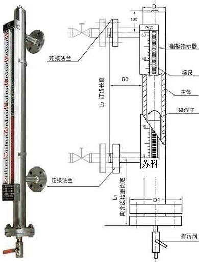
磁翻板液位計主體外的翻板箱受主體內浮子(具有定向磁性源,按不同介質和壓力針對訂貨)的(de)作(zuo)用(yong)促(cu)其(qi)翻(fan)板(ban)翻(fan)動(dong)並(bing)顯(xian)示(shi)紅(hong)白(bai)顏(yan)色(se),並(bing)隨(sui)浮(fu)子(zi)的(de)移(yi)動(dong)指(zhi)示(shi)不(bu)同(tong)的(de)液(ye)麵(mian)高(gao)度(du),紅(hong)色(se)始(shi)終(zhong)表(biao)示(shi)液(ye)位(wei)的(de)高(gao)低(di)。在(zai)指(zhi)示(shi)器(qi)左(zuo)側(ce)配(pei)有(you)醒(xing)目(mu)的(de)刻(ke)度(du)標(biao)尺(chi),從(cong)而(er)使(shi)液(ye)位(wei)的(de)指(zhi)示(shi)顯(xian)得(de)更(geng)加(jia)清(qing)晰(xi)。
磁翻板液位計結構如下圖所示:

1、量程範圍(mm):300~19000(側裝);300~5000(頂裝)
2、介質密度(g/cm3):0.5~2
3、介質粘度: ≤0.02Pa.S
4、工作溫度℃:-40~350
5、壓力等級(MPa):≤32
6、測量精度(mm):≤±10
7、安裝方式:側裝式、頂裝式、底裝式
8、防護等級:IP65
9、防爆等級:EXdbIICT6Gb
10、傳輸方式:常規為電流二線製DC24V 4~20mA(液位變送器模塊型號:SK-SBUHZ);開關量報警信號(電流與開關量兩項功能可同時兼具);RS485通訊;HART協議
11、接口法蘭:DN20 DN25 PN4.0 HG20593(側裝式)
DN80 DN100 PN1.0 HG20593(頂裝式、底裝式),可以根據用戶的需要特殊訂貨。
注:當液位計安裝受環境影響,空間位置L1<300訂貨時應明顯提出。
產品選型
SKUHZ |
磁翻板液位計 |
|
代碼 |
安裝方式 |
2 |
側裝式 |
3 |
頂裝式 |
|
代碼 |
主體材質 |
1 |
ABS(PP) |
2 |
304 |
3 |
316L |
4 |
304襯PTFE |
5 |
316襯PTFE |
| 6 |
Ta(鈦) |
| 7 |
HC(哈氏合金C) |
|
代碼 |
公稱壓力 |
1 |
0.6Mpa(僅適用於主體材質為ABS時) |
2 |
1.6Mpa |
3 |
2.5Mpa |
4 |
4.0Mpa |
T |
特殊說明 |
|
代碼 |
功能要求 |
1 |
基本型(就地顯示,不帶2、3、4、5) |
2 |
帶上、下限開關輸出;上上限,下下限等多點位控製用Xn標示 |
3 |
帶現場顯示型遠傳(二線製4~20mA輸出,24VDC) |
4 |
帶遠傳信號(二線製4~20mA輸出,24VDC) |
5 |
帶隔爆型遠傳(4~20mA輸出,24VDC) |
|
代碼 |
功能要求 |
L(mm) |
測量量程範圍-側裝式為兩側裝法蘭的中心距離 |
L/L1(mm) |
測量量程範圍-頂裝式為法蘭以下長度/測量量程範圍 |
|
代碼 |
功能要求 |
ρ |
介質密度g/cm³ |
|
代碼 |
功能要求 |
|
|
|
|
|
|
|
DN |
連接法蘭規格尺寸
側裝式法蘭DN20 DN25 PN1.6或者其它要求
頂裝式法蘭DN80 DN100 PN1.0 PN1.6或者其它 |
SKUHZ |
2 |
4 |
2 |
5 |
1100 |
1.2 |
DN20 |
|
選型釋義;磁翻板液位計;側裝式安裝;主體材質:304襯四氟;公稱壓力1.6MPa;DC24V供電;4~20mA輸出;隔爆型
兩法蘭安裝中心距1100mm 介質密度:1.2g/cm² 側裝式法蘭連接 法蘭規格:DN20 PN1.6 |
磁翻板液位計係列產品有:側裝式磁翻板液位計;頂裝式磁翻板液位計;防腐型磁翻板液位計;遠傳磁翻板液位計 |